
Parmatown was part of a national trend that emerged in the 1950s sparked by the father of shopping malls, Victor Gruen. Originally, like many malls of that time, Parmatown once looked more like it looks today as the new Shoppes at Parma before it became enclosed in 1965. In fact, there is actually a statue that has managed to remain outside of the Shoppes of Parma to this very day that dates to Parmatown's opening, which is the statue of a seal. While there are still remnants of the old Parmatown such as the seal statue, a lot has changed throughout the years, specifically its iconicism as a place where everyone used to want to be and the pinnacle of a town's consumerism.
Parmatown featured a wide array of stores to shop from throughout its years, including department stores such as May Co. and Higbee's, many shops for dress clothes or casual clothes depending on the time period, restaurants, one of which, Antonio's Pizza, can be seen to this very day, and entertainment ranging from Aladdin's Arcade to a movie theatre. This enclosed community allowed people of all ages and primarily those of younger age to experience a sense of wonder and excitement that they couldn't have found anywhere else, a home away from home. For many of us, shopping malls are places with a wealth of childhood memories, and one of the first places that one gets to experience independence away from one's parents. The welcoming warmth of the shopping mall helped to shape the image of what it meant to be American during a time when consumer culture portrayed somewhat of an idealized romance regarding shopping malls and the indulgences they offered.
Closely mirroring the broader history of malls, Parmatown was, like most malls, an experience, one that was a cornerstone of Parma culture for generations. Longtime Parma resident Jane Kovach recalls, "It used to be a big deal to go to the mall. One wouldn't just wear jeans and shirt; people wanted to show respect to each other by dressing decently–no jeans and a t-shirt." Despite the informality many younger people may associate with suburban malls, Kovach's memory is a reminder that in their early days, malls shared a lot with downtown shopping, where people also tended to dress up in their finer clothes.
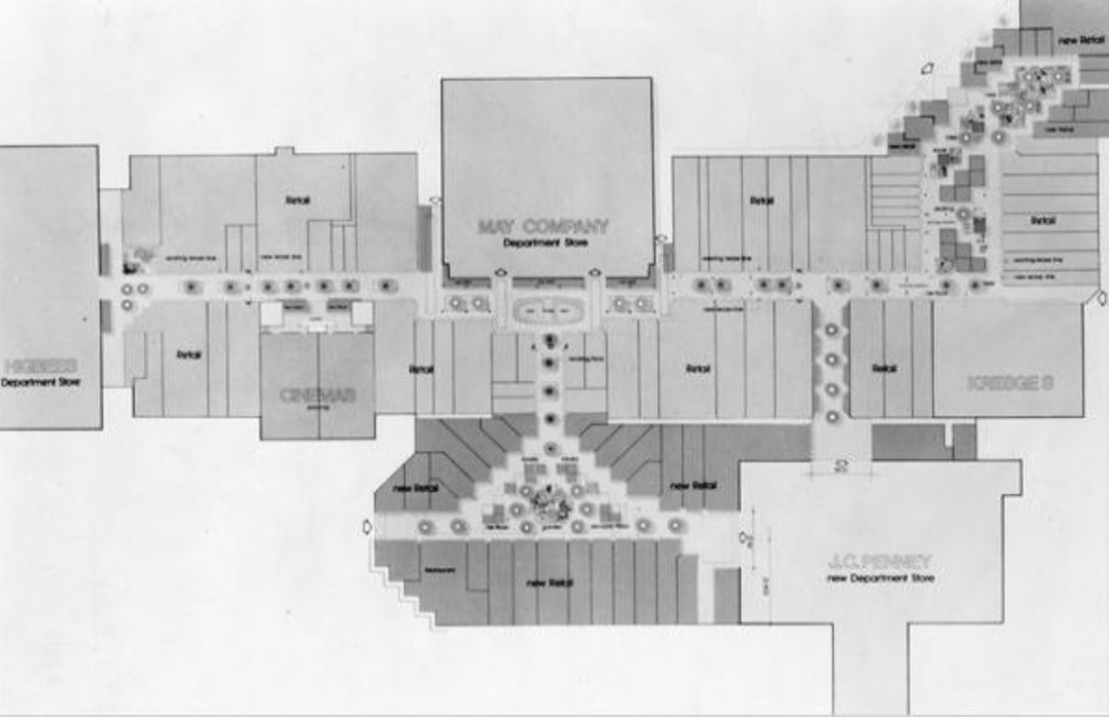
Officially opening in 1956, Parmatown was not originally like the mall that stood for generations. Instead it was an open-air shopping plaza like the kind we have today in Parmatown's old location of what is now the Shoppes at Parma. It was not until 1965 that the mall was enclosed, taking the form that most people would associate with a mall. Parmatown would have many attractions throughout its years as a mall, both inside and out, including the annual Rib N Rock, an arcade, Easter events with live animals, and more. Parmatown's influence extended far and wide, not least through its promotion in advertisements throughout Cleveland newspapers.
During Parmatown's time before becoming the Shoppes at Parma, it underwent three expansions: first in 1965 as an enclosed mall, second in 1966 adding a Higbee's with a second floor and a fully enclosed west wing, and third in 1979 to add a new south wing, a food court, and a second floor for J.C.Penney. All of the expansions highlight the growing popularity of the mall phenomenon. Despite its success as an enclosed mall for almost fifty years, however, on January 4, 2012, the first sign of Parmatown's downfall appeared with the closing of Macy's. Shocking everyone, Macy's would lay off its 127 employees that spring. Due to underperformance of the store, Macy's decided it was best to focus on the higher performing stores rather than keep underperforming ones like that of Parmatown barely afloat. The lost jobs were those which were not unionized, but more importantly they were all jobs that once thrived for decades, highlighting the warning signs of a changing economy. At this point, Parmatown representatives announced plans to keep the mall open and try out new stores, which indicates that amid the economic hardship, mall representatives were likely told to keep quiet regarding the mall's failing state in order to see just how much longer the mall could keep generating revenue before its closing would be declared.
Finally, it was announced in 2013 that Parmatown mall would be closing and the owner would be given a 30-year tax break in order to help finance a renovation where the mall would be taken back to a state closely resembling its original form until it was enclosed in 1965. The agreement was that Phillips Edison & Co. would use one-hundred percent of new property taxes generated at the mall on infrastructure improvements and demolitions. By 2015, the Shoppes at Parma were almost fully built, and as of 2019 the center appeared to be thriving from an outsider's perspective, with businesses all around where the entrance to Parmatown once was, now providing an open-air concept just like Parmatown before it was enclosed mall in 1965. It appears as if the mall got its third chance at life.
Although Parmatown surely experienced a surge of new competition when SouthPark Mall opened in Strongsville in 1996, Parmatown’s demise primarily stems from the rise of the internet, with people being able to access billions of products that may fit a particular need better than what a store can fulfill at any given moment, all at a cheaper price. The impact of massive companies like Amazon or Walmart taking over the retailing industry was ultimately too much for Parmatown. Historian Vicki Howard, author of From Main Street to Mall, argues that "traditional department stores no longer had a powerful trade voice as they had earlier in the twentieth century, when presidents sent messages to their annual conventions or appointed merchants to head important wartime agencies or consult on national policy." Eventually, certain companies started to reign supreme in the fight for market share, and have since made it harder for traditional department stores to remain in business. A perfect example of this phenomenon occurring at Parmatown, along with many other malls, was when when Walmart took over the old the Dillard's in 2004 and remains in the same building until this very day.
Parmatown was a victim of a changing economy, one in which online competition outshines brick-and-mortar retailers of all sizes, and only the strongest survive. Pairing the changing economy with little innovation in terms of trends, Parmatown was eventually forced to close and move to an open-air model reminiscent of it had been prior to 1965. While the Shoppes at Parma is not technically considered a mall, it still has mall-like inflections with tens of stores along a massive strip. The mall-like inflections, however, are limited. They foster little sense of community, as the plaza model no longer forces people to shop in one massive building, instead granting them the ability to move only between their car and a particular store. Despite the tradeoffs, hopefully the plaza model will sustain the revival of the Shoppes for many years to come.
Images









