Filed Under Education

Monticello Middle School

Monticello Junior High was the last building built in the Heights Schools' rapid expansion of the 1920s. After the construction of Roosevelt, Fairfax, Coventry, Roxboro Elementary, Taylor, Noble, Boulevard, Roxboro Junior High, Oxford and Canterbury (and additions to all but four of these buildings), the northern part of Cleveland Heights received a first-class building that remains among the district's most attractive.

John H. Graham (who also designed Coventry Library) was the architect for the District's last four prewar buildings, which were much more reserved than the more exuberant buildings designed by Franz Warner in the teens and twenties. The layouts and designs of these buildings exhibit a more "modern" perspective on educational architecture, even though they were less than ten years older than their peers.

The layout and location of the District's schools hued closely to a 1920s facilities report that projected a need for twelve elementary schools and four junior highs. This was in response to rapid growth throughout the city. In 1910, Cleveland Heights had a population of 2,955, growing to 14,811 in 1922. Population continued to swell to 50,946 by 1930, with a pre-Depression forecast to reach over 100,000 by 1940. The scale of this growth is seen by 1,077 homes built in 1919 alone. For example, from 1917 to 1919, school enrollment nearly doubled from 1,366 to 2,466.

This growth was not uniform and two large estates, plus smaller ones at Mayfield and Taylor, separated Cleveland Heights with some in the northeastern section of the city feeling neglected. With development marching up Noble Road from more developed East Cleveland, this is easy to understand. Construction of a first-rate Junior High along with Oxford Elementary, Noble Library and the Noble Fire Station displayed Cleveland Heights' commitment to the area.

Monticello exhibits John Graham's skill and the District'st intention to expand nearly all of its buildings to accommodate future growth. Ramps were employed to allow for changes in grade and floorplates, with a large auditorium placed beneath the cafeteria on the second floor. In front of the cafeteria and connected to it was the library. The 1970s renovations would move the cafeteria to a new addition and the library to a former courtyard that was enclosed. Both of their former spaces would be converted to classrooms.

Audio

'We Were Cardinals' Lisa Hunt remembers her time as a student at Monticello Junior High School in the early 1980s. Source: Cleveland Regional Oral History Collection
"We Called Ourselves 'Monty.'" Barbara Wherley recalls the school's mascot and a favorite nickname.
Multicultural Monticello Barbara Wherley remembers how Monticello introduced her to Jewish and African American classmates for the first time in the late 1960s. Source: Cleveland Regional Oral History Collection
Lunchtime Movies Barbara Wherley recalls lunchtime movies shown at Monticello in the late 1960s. Source: Cleveland Regional Oral History Collection

Images

1953 Baseball Team
1953 Baseball Team The three arches at the front of Monticello would be a common location for group photos. Here we have the 1952-53 baseball team posing. While Roosevelt did not receive a real track and field until the 1960s, Monticello would have to wait until the 1990s. Before then, gym classes had to circle the building when running the mile! Source: Cleveland Heights High School Alumni Foundation
Exterior, ca. 1960
Exterior, ca. 1960 Monticello joined the original Fairfax, Coventry, Taylor, Boulevard and Cleveland Heights High School in being a strong architectural presence on a major thoroughfare. Today four of these school buildings have been replaced with demure structures, and Heights High School was hidden behind the Sputnik-era Science Wing until a major renovation in 2017. Source: Cleveland Heights High School Alumni Foundation
Opening Day Program, 1930
Opening Day Program, 1930 Monticello Junior High School opened just as construction in Cleveland Heights was being reduced to a trickle for the next fifteen years, thanks to the Great Depression and World War II. While the northern portion of Cleveland Heights had seen tremendous growth in the 1920s, there were still many vacant lots that would not be built out until the 1940s and 1950s. Source: Cleveland Heights High School Alumni Foundation
School Orchestra, ca. 1960s
School Orchestra, ca. 1960s The Monticello Cardinal Orchestra is proudly shown posing with their instruments in the 1960s. Source: Cleveland Heights High School Alumni Foundation
Graduation, 1965
Graduation, 1965 While the front of the building was used for group photos, class photos were often taken behind it. The tremendous number of students from the baby boom and constant use of the buildings would leave Monticello and other schools in need of significant work by the 1970s. In the 1980s much of the aesthetic and design concepts behind the 1970s renovation program would be called into question, with the lost architectural details mourned. Source: Cleveland Heights High School Alumni Foundation
Architectural Elevations, 1929
Architectural Elevations, 1929 The front and rear elevation show Monticello as it was built and looked for its first forty years. When the windows added in the 1970s were finally replaced in the 2000s, the building was restored to more of its original look. Source: Cleveland Heights High School Alumni Foundation
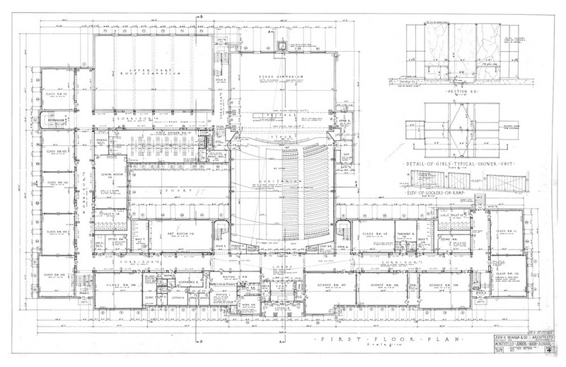
First Floor Plan
First Floor Plan While the exterior of the school changed little in the 1970s renovation, its interior saw major alterations, in particular with the classrooms overlooking the courtyard. The auditorium exhibits a characteristic also seen at Roxboro Junior High and Cleveland Heights High School: it was where students went to watch competitive basketball games! Source: Cleveland Heights High School Alumni Foundation
Conceptual Drawings, 1928
Conceptual Drawings, 1928 While the building's massing in these two conceptual drawings is the same, they varied in the ornamental details that would become associated with the building. The design on top has a front door with three arches as was actually built, but it is missing the school's familiar cupola. The bottom drawing has a cupola, as well as a far more demure entrance. This option lacks the sense of gravitas that the other design gave the school. Source: Cleveland Heights High School Alumni Foundation

Location

3665 Monticello Blvd, Cleveland Heights, OH 44121

Metadata

Eric Silverman, “Monticello Middle School,” Cleveland Historical, accessed April 17, 2026, https://www.clevelandhistorical.org/index.php/items/show/495.