
The Hungarian dishes that Rosa Wohl cooked at the Wohl Boarding House on Seneca (West 3rd) Street in the 1880s were so popular with their guests that she and her husband Ludwig were encouraged to open a restaurant of their own. By 1888, they had opened one at the boarding house. It was said to be Cleveland's first Hungarian restaurant. In 1903, the Wohls moved that restaurant, which by then had become one of the city's most popular, across the street into a new three-story building that still stands today at 1280 West 3rd Street.
It is difficult to learn much detail about the early lives in Europe of Ludwig and Rosa Wohl, the founders of Wohl's Hungarian Restaurant. According to Ludwig's petition for U.S. citizenship, he was born on April 8, 1837, in Bator, Hungary. By the late 1860s, when he would have been about 30 years old, he had already married Rosa Friedman, was living in Kassa, Hungary (today, Kosice, Slovakia), and was father to his and Rosa's four young sons, Ferdinand (Fred), Sandor (Alexander), Maximilian (Mike) and Julius. According to his obituary, Ludwig and his family then moved to Vienna, where he became a successful livestock trader and distiller until the Panic of 1873 financially ruined him. In 1878, all of the Wohl family, except for Sandor who remained in Europe to pursue an acting career in German theater, moved to the United States.
Upon arriving in America, the Wohl family traveled to Cleveland where Rosa Wohl appears to have had relatives. Ludwig, now in his forties, became a dry goods peddler for a few years, and the family lived for a time on Water (West 9th) Street before they moved to Seneca (West 3rd) Street where Ludwig leased a two family house and then converted it into a boarding house. Rosa cooked such delicious Hungarian meals for their guests, including goulash, fresh baked bread and Hungarian pastries, that the Wohls were soon encouraged to open a restaurant in the boarding house, which they did in 1888. According to local newspapers, it was Cleveland's first Hungarian restaurant. Eventually, the Wohls closed the boarding house and devoted all of the house to the operations of the restaurant, which included living quarters for both the Wohl family and the restaurant staff. By 1900, according to the federal census, there were eight Hungarian immigrants living with the Wohl family—one listed as a cook, two as waitresses, and the other five as "kitchen help."
Even though the two-family house in which the original Wohl's Hungarian Restaurant was located had no signage that indicated it was a restaurant and was in such a dilapidated condition that it was referred to as "the Shanty," Clevelanders loved the restaurant and patronized it in large numbers. A March 8, 1903, article in the Cleveland Plain Dealer referred to it as the most popular "foreign"restaurant in Cleveland. It was also an important meeting place for Cleveland's Hungarian community. In late March 1894, it had served as the place where leaders of that community gathered to plan a memorial to Hungarian national hero Lajos Kossuth, who had died earlier that month.
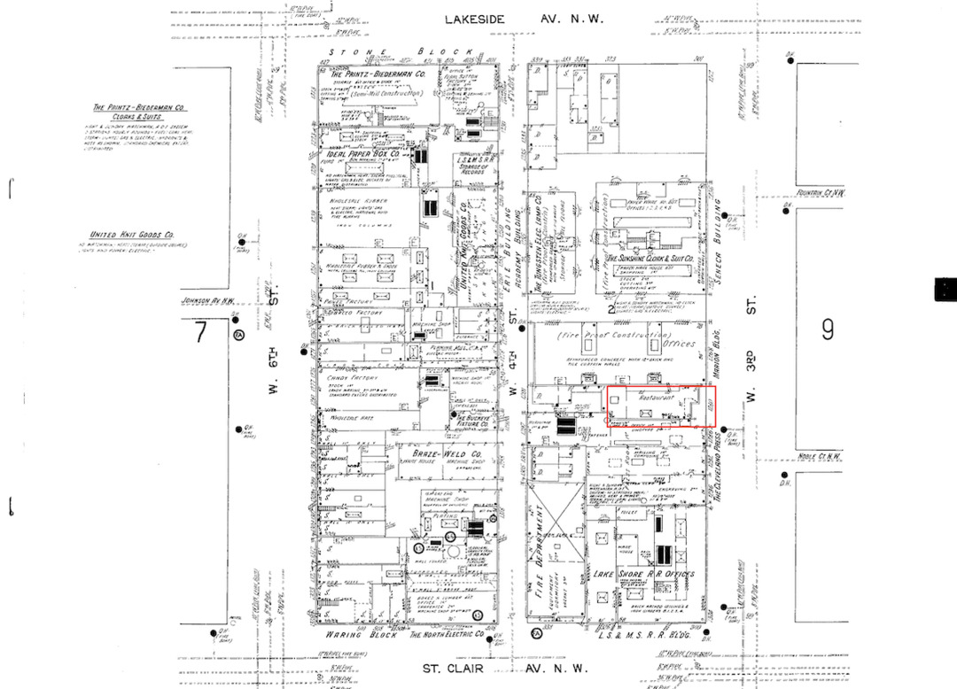
In 1902, the Wohl family began making plans to move their restaurant into a new building across Seneca Street from their old restaurant building, and next door to the Cleveland Press building. Designed by Progressive architect Morris Gleichman in a style which local historian Drew Rolik called "Dutch Baroque Domestic (Revival)," the building, which still stands today at 1280 West 3rd Street, is three stories tall with an exterior of vitrified brick. It features two massive arches at its front door which originally led into the restaurant's main dining room. The first two floors of the building were devoted to dining and private meeting rooms, and a kitchen. The third floor, and perhaps outbuildings on the property, housed the residences of the Wohl family as well as the restaurant staff, which, according to the 1910 census, now numbered 19 individuals—all Hungarian immigrants—two employed as bartenders and the other 17 as waitresses. The new restaurant opened on June 6, 1903. The opening was attended by many prominent Clevelanders including Mayor Tom L. Johnson.
At about the time that the new restaurant building was opening, Alexander Sandor Wohl, the son of Ludwig and Rosa, who by this time had become a well-known actor and director of theater in Berlin, Germany, and who had made trips to and from the United States in the late 1880s and 1890s, returned to the United States and became active in the theater life of Cleveland. He also became involved in the family restaurant business, perhaps as the result of the death of his brother Mike in 1902 and the aging of his father Ludwig, who was now well into his 60s. According to Alexander's obituary, he used his theater connections in Cleveland to arrange for members of the Cleveland Opera House orchestra to appear and play pieces by Mozart, Beethoven, and Strauss at Wohl's Hungarian restaurant, making it, according to Cleveland newspapers, the first restaurant in Cleveland to play music while patrons dined.
In the first two decades of the twentieth century, Wohl's Hungarian Restaurant remained one of Cleveland's most popular restaurants. When President Howard Taft visited Cleveland in 1912 during his presidential reelection campaign, he made a point of visiting the restaurant. After the death of Ludwig Wohl in 1910, management of the restaurant was left to his sons, Alexander and Julius. In 1920, the restaurant was dealt a blow from which it never really recovered by the start of Prohibition. Another blow to the restaurant was delivered in 1927 when Rosa Wohl, Ludwig's widow, whose Hungarian cooking had made the restaurant one of Cleveland's best, died.
The final blow to Wohl's Hungarian Restaurant was the Great Depression, which began in 1929. By the time that the 1930 federal census was taken, only Alexander and Julius Wohl were still living in the building at 1280 West 3rd. Three years later, the brothers executed a deed conveying whatever interest in the property that they may have had to the heirs of Frank W. Hubby from whom the Wohl family had leased the new restaurant building since 1903. Two years after this, in May 1935, despondent over their businesses losses, Alexander and Julius Wohl committed suicide in a back room of the restaurant. They both were cremated and their ashes interred with the bodies of their parents and siblings at Mayfield Cemetery in Cleveland Heights.
Following the deaths of Alexander and Julius Wohl, the Wohl family's longtime employee Ernest Mueller attempted to keep the restaurant going, but was ultimately unsuccessful. In 1936, the Hubby family heirs sold the building at 1280 West 3rd street to a union official representing the interests of the Cleveland Building and Trades Council. For approximately the next 50 years, the building was home to several different Cleveland labor organizations and was known for a time as the Cleveland Building and Trades Hall and later as the Painters' Union Building. In 1985, the building was sold to a corporation owned by a law firm headed by Richard Bertsch, after whom the building is now named. The Bertsch law firm, and its successor law firms, owned the building through various corporate entities until 2020, when it was sold to a local real estate developer. Recently, that developer has floated plans to demolish both the Bertsch Building and the next door Marion Building and build a hotel and apartment building on the site. Only time will tell whether the Bertsch Building, home to Cleveland's first Hungarian Restaurant, will be torn down, thereby removing from downtown Cleveland the last vestige of that historic trend setting restaurant owned and operated by the Ludwig and Rosa Wohl family.
Images














