Filed Under Religion

Saint Patrick on Bridge Avenue

A Memorial to Cleveland's Irish Immigrants

In 1903, when William A. Manning wrote his "History of St. Patrick's Parish," the first generation of Irish Catholics who founded St. Patrick parish in 1853 was already slowly beginning to disappear. Manning urged his readers to remember them, not just for the grand church and other buildings they had erected on the parish campus, but just as importantly for the strong and caring community they had created on Cleveland's Near West Side.

Up until 1852, there was only one Catholic church in Cleveland. It was Our Lady of the Lake—better known as St. Mary of the Flats—located at Cleveland Centre. That changed when the Cathedral of St. John the Evangelist on Erie (East Ninth) Street was dedicated and opened for services that year, providing Catholics living east of the Cuyahoga River with a neighborhood church. And that, in turn, gave rise to requests by Irish and German Catholics living in Ohio City—which would soon become Cleveland's West Side—for parishes and churches of their own. Bishop Amadeus Rappe, Cleveland's first Catholic bishop, responded to the German Catholics by granting them permission to form a new parish called St. Mary of the Assumption and giving them temporary possession of St. Mary of the Flats church, pending construction of a church of their own on the southwest corner of Carroll and Jersey (West 30th) Streets, which was completed and dedicated in 1865.  

The Bishop also gave permission to the Irish Catholics living in Ohio City to form a parish of their own, which they named St. Patrick after their patron saint. In 1853, Rappe appointed Father James Conlan, his vicar general and an immigrant from Ireland, to be the first pastor of the new parish and authorized the parish to build a church on a lot on the south side of Merchant (later, Whitman) Street, between Woodbine and Kentucky (West 38th). It took four years to build and dedicate that church—a small brick Gothic-style building—though services were held in it, according to several sources, as early as Christmas of 1853.  

The new St. Patrick parish also soon made arrangements for the parochial education of its children. Initially, school-aged boys were taught in a temporary classroom within the nave of the church on Whitman and girls in another diocese-owned building on Franklin Circle where the Franklin Circle Christian Church stands today. More permanent arrangements were made in 1863 when a two-story brick building that held classrooms for boys on the second floor and girls on the first was erected on the lot on Whitman immediately to the west of the church. Two years later, a second two-story brick school building was built on Whitman on the lot immediately to the east of the church. When opened, this second building became the school for girls of the parish, and the building to the west now became exclusively the boys' school. 

The church and two school buildings on Whitman constituted the entirety of the St. Patrick parish campus on June 15, 1870, when 23-year-old Western Union telegraph operator William A. Manning married Mary Devine, a West Sider and second generation Irish-American, in that church. Manning's parents were Irish, but they had moved to Scotland where he was born in 1847. The family then immigrated to the United States in 1849, living first on the East Coast, before continuing west and eventually settling on Cleveland's East Side. They resided in rental properties until 1867 when Manning's parents purchased a house on Oregon Street (today, Rockwell Avenue) between Dodge (East 17th) and North Perry (East 21st) Streets. After he married, William Manning moved from his family's house on the East Side to the West Side and, in the process, became a member of St. Patrick's parish.   

The year 1870 was an important one for St. Patrick parish too. As a result of a large population increase on Cleveland's West Side in the decades of the 1850s and 1860s—much of it consisting of Irish Catholics—the parish church on Whitman had become too small to serve the parish. The Cleveland Diocese had addressed this population increase by consenting to the formation of two new West Side Irish Catholic parishes, St. Augustine parish on the South Side in 1860 and St. Malachi on the West Side in 1865. However, despite the formation of these new parishes, membership in St. Patrick parish continued to grow and the parish, still led by its first pastor Father Conlan, and with diocese approval, decided to build a new and larger church. Several lots or parts of lots were purchased on Bridge Street (Avenue), immediately south of the church on Whitman, and, by late summer of 1870, construction was begun on the new church—the one which still stands today on Bridge Avenue.

The original design of the new St. Patrick's church on Bridge Avenue was created by Samuel Lane of the Cleveland architectural firm of Koehler and Lane. However, in the early years of the project, architect Alfred Green superintended the building of the church. As a result of the Panic of 1872 and ongoing parish financing challenges, it took some 60 years to complete the construction of the church, although enough was finished by 1877 to allow services to be held in the church and enough additional work was completed by 1882 to permit it to be dedicated. Over the course of the years that followed, other architects weighed in and, at times, modified Lane's original design. 

That design, according to a Plain Dealer article on August 21, 1871, was for a Gothic-style church built with an exterior facade composed of two types of stone—in this case, sandstone and limestone—arranged in a manner known, according to architectural historian Tim Barrett, as polychromatic structuring. The building was to be 132 feet long and 67 feet wide, "exclusive of buttresses and sacristy," which were to be constructed "on the outside of the church." The walls of the church were to be 43 feet high "from table to wall plate, ninety-three from floor to ridge, and 230 feet from street line to top of spire." The interior of the church was "to have a highly enriched grained ceiling, and a main and two side aisles." The plan also called for an "elaborate stained and figured glass window at the back of the altar . . . which [was] to be one of the principal features in the sanctuary." The new church was expected to have a seating capacity for at least twelve hundred persons, which was more than double the seating capacity of the church on Whitman.

During the foregoing early period of the church's construction, the parish also added other buildings to the parish campus, including a residence on Whitman in 1873 for the Marianist Brothers who taught at St. Patrick's boys school and, in 1878, a parsonage or rectory, west of the new church on Bridge, for the parish priests. In 1890, St. Patrick parish turned its attention to its school buildings which had become overcrowded as the population of the parish continued to grow in this period. In that year, the old church and the two school buildings on Whitman were razed and, in their place, a large three-story school building was erected in 1891 which featured a parish hall on its third floor with seating capacity for 1,200 persons. At the time, as reported in the November 24, 1891 edition of the Catholic Observer, it was reputed to be the largest school building in the United States. According to a 1898 Diocese report, there were more than 900 students attending the school in that year.

With residences for the parish priests and Marianist brothers acquired, and the new school building on Whitman completed, parish attention turned once again to the uncompleted "new" church on Bridge. In the latter half of the 1890s, a number of improvements were made to the church in preparation for the 1903 celebration of the golden jubilee of the parish. In 1896, during the pastorship of Father James O'Leary, the interior of the church was frescoed; new windows, doors, altars, statues, and carpeting were added; and other various interior improvements made. Three years later, a new organ was installed in the interior of the church and chimes with eleven bells in the church tower. In 1903, during the tenure of new pastor Francis Moran, the tower of the church was finally completed, not with a steeple as contemplated by architect Samuel Lane in his original design, but instead with a pinnacled crown designed by Akron architect William P. Ginther.

In that golden jubilee year of 1903, William Manning, who had moved in 1897 from the Near West Side to the new streetcar suburb of Lakewood and in 1900 had become a founding member of St. Rose of Lima parish, returned to St. Patrick's to write a history of the first fifty years of the parish. Over the course of the nearly three decades in which he had been a member of St. Patrick's parish, he had been one of its most active members, had held a seat on the parish council for two decades, and, according to pastor Moran, had "charge of financial accounts and prepared the annual report." Manning had been acquainted with every pastor of the parish up to that date, and, as he noted in his history of the parish, was able to call upon a number of the older parishioners to fill in the gaps where his personal knowledge was not sufficient. If, as likely was the case, he had taken the streetcar back to St. Patrick while his history was a work in progress and stood on Bridge Avenue in front of the church to admire the pinnacled crown recently added to its tower, he would have seen nearly the same exterior as anyone who stands before it today—except the pinnacles he would have seen atop the crown are now gone. They were removed years ago when they began to crumble and fall, creating a safety hazard for pedestrians below.  

When he wrote his parish history, William Manning was very aware, as the lede to this story reveals, that many changes had come to the parish and its campus since its founding in 1853. And there were more to come, a good number of which Manning likely witnessed, as he lived for another 34 years, before dying in 1937 at the age of 90. In 1913, the parish built a 55-foot addition to the rear of the church designed by architect Edwin J. Schneider and within which a sacristy was added and the sanctuary and nave of the church enlarged. In 1931, the old wooden altars in the church were replaced with marble ones, a new pulpit was installed and the interior freshly repainted, leading to the consecration of the church on St. Patrick's Day of that year, an event 83-year-old William Manning would have almost certainly attended, health permitting.   

Another change to St. Patrick—the beginnings of which William Manning may have witnessed—was the thinning of the Irish population of the parish, which, according to Plain Dealer newspaper articles, may have begun as early as the 1930s. Irish Americans like Manning had been moving west to suburbs like West Cleveland (1871-1894), Lakewood, and others since the 1870s, leading to the creation of new Irish parishes, such as St. Colman on Gordon (West 65th) Street (1880) and St. Rose of Lima near the Cleveland-Lakewood border (1897). However, it is likely that it was the increased movement to the suburbs in the mid-20th century stimulated by the development of the interstate highway system and the post–World War II influx of Appalachian and Puerto Rican migrants to Cleveland's Near West Side that dramatically changed the ethnic composition of the parish. Moreover, in 1945, St. Mary of the Assumption church—located less than a quarter of a mile from St. Patrick's—became a chapel on the St. Ignatius High School campus when its parish apparently dissolved.  While some of its parishioners likely transferred to St. Stephen or St. Michael parish, both also historic German Catholic parishes in Cleveland, a number may have preferred to join St. Patrick parish, because its church was much closer, thereby also contributing to the thinning of the Irish membership there. (The ending of St. Mary parish also had another effect on St. Patrick's parish. Jesuit priests who previously had ministered to St. Mary's parish were reassigned. Included was Father Francis Callan who became pastor of St. Patrick's, and, for the next 35 years, Jesuit priests led the historic Irish parish.) 

By 1971, when St. Patrick parish celebrated the 100th anniversary of the laying of the cornerstone of the church on Bridge Avenue, it was noted in a March 16, 1971 Plain Dealer article that there were only a few "patches" of Irish left in the parish and that the parish was now one of many different ethnicities, with fifteen percent of it speaking Spanish as a first language. In the 1980s, as Jesuit priests departed and diocesan priests returned to St. Patrick parish, the new pastor, Mark DiNardo, along with co-pastor Edward Camille, became the first diocesan priests in the history of the parish to not have Irish surnames. In 1985, Father DiNardo, sole pastor of St. Patrick parish after the reassignment of Father Camille in 1983, initiated a series of outreach programs, designed to help the inner-city homeless and poor. While Father DiNardo retired in 2017 after serving the parish as its pastor for 37 years, the programs, which include a Hunger Center, Charity of the Month, and Project Afford, have continued. 

If William A. Manning were alive today to take a tour of the current St. Patrick parish campus, he would note with approval that many of the buildings that existed on the campus when he last visited are still standing, and he would likely be very sorry to hear that the grand school building on Whitman is not. It was razed by the parish in 1978, leading Plain Dealer columnist George Condon, an Irish-American, to advocate for the preservation of St. Patrick church as a "memorial to Irish immigrants." Manning might be most interested, however, to learn about the parish outreach programs and whether the parish had, over the years, reduced poverty, illness, and homelessness, and fostered a greater sense of community, in the Ohio City neighborhood, a feat that he believed the Irish immigrants who founded St. Patrick parish in 1853 had in their day achieved.

Images

St. Patrick Church
St. Patrick Church Wintery view of St. Patrick Church from grounds of Carnegie-West Library in circa 2000. Source: St. Patrick Parish Date: ca. 2000
Father James Conlan (1801-1875)
Father James Conlan (1801-1875) He was the first pastor of St. Patrick Parish. Under his leadership, the parish built the original church on Whitman Avenue and the two school houses built on either side of that church. He convinced the parish in 1870 to build a larger and grander church on Bridge Avenue, but did not live to see that church completed, dying in 1875 while it was still in the early stages of construction. Source: History of St. Patrick's Parish: Memorial of the Golden Jubilee (November 18, 1903) Date: Circa 1870
The original St. Patrick parish campus
The original St. Patrick parish campus The original St. Patrick church (center) on Whitman Avenue and the brick school buildings on either side of it. Source: History of St. Patrick's Parish: Memorial of the Golden Jubilee (November 18, 1903) Date: Circa 1865-1890
St. Patrick Church--before it acquired its Crown.
St. Patrick Church--before it acquired its Crown. St. Patrick church on Bridge Avenue (right) before a stone crown designed by architect William P. Ginther was added to the tower in 1903. On the left is the house purchased in 1878 and modified to become the parish rectory. Source: Houck, Rev. George. A History of Catholicity in Northeast Ohio and the Diocese of Cleveland from 1749 to December 31, 1900. Cleveland: Press of J.B. Savage 1903. Date: Circa 1882
Interior of St. Patrick Church on Bridge Avenue
Interior of St. Patrick Church on Bridge Avenue Source: History of St. Patrick's Parish: Memorial of the Golden Jubilee (November 18, 1903) Date: Circa 1882
Adding a Crown
Adding a Crown St. Patrick's church on Bridge Avenue with the stone crown designed by Architect William P. Ginther added to its tower. Source: History of St. Patrick's Parish: Memorial of the Golden Jubilee (November 18, 1903) Date: 1903
St. Patrick's Elementary School
St. Patrick's Elementary School Built on Whitman Avenue on the lots where formerly there stood the original parish church and two school buildings, it was said to be the largest school building in the United States when it was built in 1891. It stood on Whitman Avenue for 88 years before being razed, by the parish, for reasons of economy, in 1978. Source: Houck, Rev. George. A History of Catholicity in Northeast Ohio and the Diocese of Cleveland from 1749 to December 31, 1900. Cleveland: Press of J.B. Savage 1903. Date: Circa 1900
William A. Manning (1847-1937)
William A. Manning (1847-1937) Born in Scotland to Irish parents, William A. Manning came to America with his family when he was just two years old. His family settled on the east side of Cleveland, but he moved to the west side in 1870 when he married West Sider Mary Devine, a second generation Irish-American. Manning became very active in St. Patrick's parish life and, in 1903, authored a history of the first fifty years of the parish which has become a memorial to the Irish immigrants who founded. St. Patrick parish in 1853. Source: Thomas J Lee, a grandson of William A. Manning Date: Circa 1900
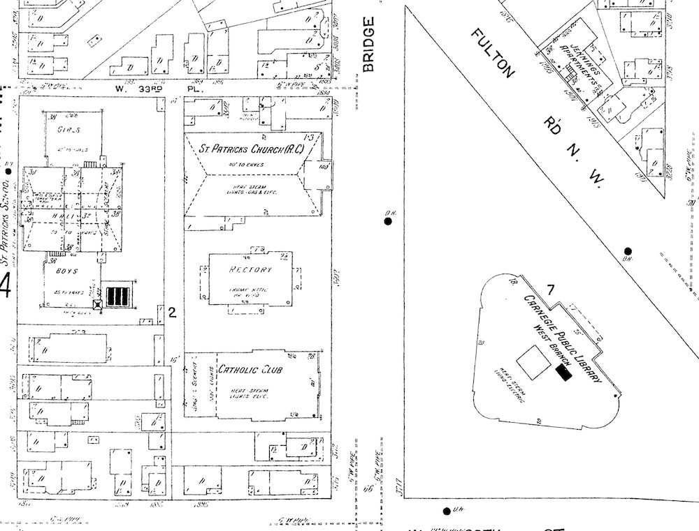
Sketch of St. Patrick parish campus
Sketch of St. Patrick parish campus This section of an Ohio Sanborn Map presents a good visual of the parish campus layout during these years. Source: Cleveland Public Library, Digital Map Collection Date: 1912-1913
St. Patrick Church on Consecration Day
St. Patrick Church on Consecration Day On St. Patrick's Day in 1931, St. Patrick Church on Bridge Avenue was consecrated. Source: Cleveland Public Library, Digital Photograph Collection Date: March 17, 1931
Consecration Mass
Consecration Mass This photo taken during the consecration mass held at St. Patrick church on St. Patrick's Day in 1931 provides a beautiful view of several of the new marble altars that were added to the church that year. Source: Cleveland Public Library, Digital Photograph Collection Date: March 17, 1931
Marching on St. Patrick's Day
Marching on St. Patrick's Day The West Side Irish American Fife and Drum Corps. marches on Bridge Avenue on its way to St. Patrick Church. Source: Cleveland Public Library, Photograph Collection Date: March 17, 1938
Mission House
Mission House This photograph is of the residential building on the St. Patrick parish campus known as the Mission House which stands at 3601 Whitman Avenue. Purchased in 1873 by the parish to be a residence for the Marianist Brothers who taught at St. Patrick school , it was for years called the Brothers Residence. Later, it served as a convent for the Ursuline Sisters who also taught at the school. In recent years, it has served other parish purposes related to Outreach programs. Source: St. Patrick Parish Date: 1947
Easily Accessible at the midcentury mark
Easily Accessible at the midcentury mark In this photo, a streetcar travels down Bridge Avenue near St. Patrick church. Source: Cleveland Memory, Michael Schwartz Library Special Collections at Cleveland State University Date: 1951
St. Patrick leading students from St. Patrick School
St. Patrick leading students from St. Patrick School Michael Sweeney, a City of Cleveland Service Department employee, dressed as St. Patrick, leads a group of students from St. Patrick School in the annual St. Patrick's Day parade. Source: Cleveland Memory, Michael Schwartz Library Special Collections at Cleveland State University Creator: Byron Filkins Date: March 17, 1954
Hispanic Students at St. Patrick School
Hispanic Students at St. Patrick School Mrs. Rosa Maria Frontera helps Puerto Rican children with English at St. Patrick School. Source: Cleveland Memory, Michael Schwartz Library Special Collections at Cleveland State University Creator: Herman Seid Date: 1961
Enjoying the Neighborhood
Enjoying the Neighborhood Margie Kahl, a secretary at the Wall Street Journal, enjoys the park setting at Carnegie West Library, with St. Patrick Church shown prominently in the background. Source: Cleveland Public Library, Digital Photograph Collection Date: June 13, 1971
The last days of St. Patrick School
The last days of St. Patrick School In 1968, St. Patrick School closed after its merger with St. Malachi School to form the Urban Community School. The cost to preserve the building being too much for the St. Patrick parish, the building was razed four years after this photo was taken. Creator: City of Cleveland for National Register of Historic Places Date: 1974
Celebrating the 150th Anniversary
Celebrating the 150th Anniversary Parishioners at St. Patrick on Bridge Avenue gather during the Covid Pandemic to celebrate the 150th anniversary of the laying of the cornerstone of their church. Source: Catholic Diocese of Cleveland Date: August 21, 2021

Location

3602 Bridge Ave, Cleveland, OH

Metadata

Jim Dubelko, “Saint Patrick on Bridge Avenue: A Memorial to Cleveland's Irish Immigrants,” Cleveland Historical, accessed April 17, 2026, https://www.clevelandhistorical.org/index.php/items/show/1007.