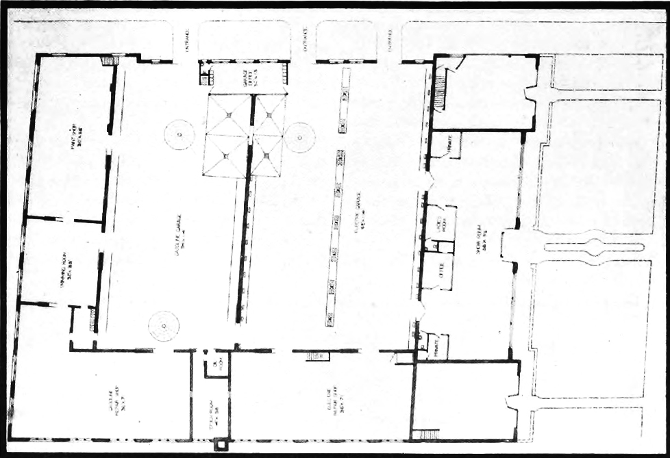
The floor plan for the first floor of the Baker Electric Motor Vehicle Company showroom

The Baker Electric showroom was 96 feet wide and 36 feet deep. Besides the showroom, the Baker electric building had a public office, large and small private offices, women's toilet and anteroom, men's toilet, and separate men's and women's reception areas.  | Date: 1911 | Source: Tim Evanson on Flickr
Download Original File