Date: 1886-1887 | Source: Cleveland Public Library, Digital Map CollectionDownload Original File
Source
Cleveland Public Library, Digital Map Collection
Date
1886-1887
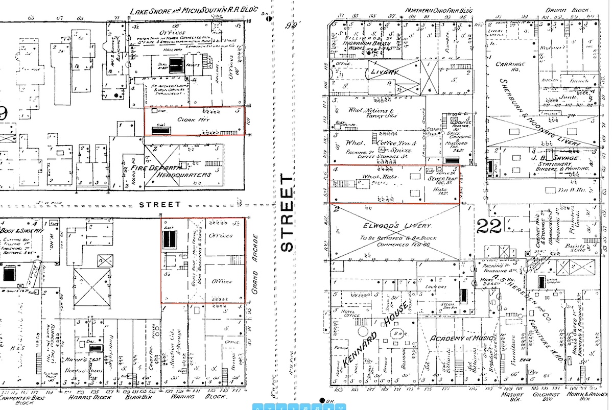
"Sanborn map view of three buildings on St. Clair Avenue owned by members of the William C. Scofield family in the nineteenth century." appears in: The Grand Arcade